Maison 4 pièces avec garage et jardin Unieux
à Unieux, offrez vous une maison 4 pièces avec jardin et garage – rue Arlette Barriol programme "La Triollière"
Découvrez nos 4 maisons de 91 m² disponibles via le dispositif d’accession sécurisé PSLA , une solution idéale pour acquérir votre bien tout en profitant d’avantages financiers. Situés dans un cadre verdoyant, ces maisons sont à proximité des commodités (commerces, écoles, transports).
Caractéristiques :
- Une maison moderne avec la réglementation RE2020 thermique et environnementale pour un confort aussi bien l'hiver que l'été
- Au rez-de-chaussée : un hall d'entrée, placard dans l'entrée, point d'eau avec toilette, cuisine, séjour donnant sur une terrasse
- A l'étage : un dégagement, une salle de bains, un WC séparé, trois chambres avec placard
Points forts :
- Accession sécurisée en PSLA
- Garage
- Volets roulants électriques
- Chauffage par pompe à chaleur avec plancher chauffant
Avantages :
- Exonération de Taxe Foncière pendant 15 ans
- TVA à 5.5 %
- Aucun frais d’agence
- Garantie de rachat et de relogement
Prix : 249 000 €
Ne manquez pas cette opportunité ! Contactez-nous au O4 26 84 08 19 pour plus d’informations
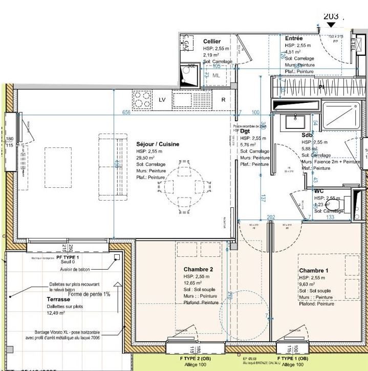
Appartement 3 pièces 73m² avec terrasse et place de stationnement
Venez découvrir « Desjoyaux », un nouveau programme à Saint-Etienne comprenant un immeuble collectif de 12 appartements et 4 pavillons, proposés en accession sécurisée.
Offrez-vous une maison située impasse Desjoyaux, dans un quartier offrant une vue dégagée sur la ville et à proximités des transports, du centre-ville et des commerces.
Cet appartement de trois pièces, offre une surface habitable de 73,03 m² et une terrasse de 12,49 m². Il est composé d'une entrée avec placard, un cellier, un dégagement, une cuisine ouverte sur un séjour donnant sur la terrasse, deux chambres, une salle de bain et toilette séparée.
Points forts :
- Accession sécurisée en PSLA
- Place de stationnement
- Volets roulants électriques
- Chauffage individuel gaz
Avantages :
- Exonération de Taxe Foncière pendant 15 ans
- TVA à 5.5 %
- Aucun frais d’agence
- Garantie de rachat et de relogement
Architecture contemporaine avec isolation de qualité RE2020.
Prix : 182 000 €*
*Prime de 9 000 € de SAINT-ETIENNE METROPOLE déduite.
Renseignements au 04 26 84 08 19
Les informations sur les risques auxquels ce bien est exposé sont disponibles sur le site Géorisques https://www.georisques.gouv.fr
Maison 4 pièces 93m² avec garage et jardin
Venez découvrir « Desjoyaux », un nouveau programme à Saint-Etienne, comprenant un immeuble collectif de 12 appartements et 4 pavillons, proposés en accession sécurisée.
Offrez-vous une maison située impasse Desjoyaux, dans un quartier offrant une vue dégagée sur la ville et à proximités des transports, du centre-ville et des commerces.
Cette maison de quatre pièces offre une surface habitable de 92,73 m² et un extérieur de 206,62 m² :
- Au rez-de-chaussée : une entrée avec placard, une cuisine ouverte sur un séjour donnant sur la terrasse, une buanderie et toilette séparée.
- A l'étage : un dégagement, deux chambres avec placards aménagés, une chambre avec accès au dressing, une salle de bain et toilette séparée.
Points forts :
- Accession sécurisée en PSLA
- Garage
- Volets roulants électriques
- Chauffage par pompe à chaleur
Avantages :
- Exonération de Taxe Foncière pendant 15 ans
- TVA à 5.5 %
- Aucun frais d’agence
- Garantie de rachat et de relogement
Architecture contemporaine avec isolation de qualité RE2020.
Prix : 246 000 €*
*Prime de 9 000 € de SAINT-ETIENNE METROPOLE déduite.
Renseignements au 04 26 84 08 19
Les informations sur les risques auxquels ce bien est exposé sont disponibles sur le site Géorisques https://www.georisques.gouv.f
Appartement 2 pièces 50m² terrasse / jardin et place de stationnement
Venez découvrir « Desjoyaux », un nouveau programme à Saint-Etienne comprenant un immeuble collectif de 12 appartements et 4 pavillons, proposés en accession sécurisée.
Offrez-vous une maison située impasse Desjoyaux, dans un quartier offrant une vue dégagée sur la ville et à proximités des transports, du centre-ville et des commerces.
Cet appartement de deux pièces, offre une surface habitable de 50,27 m² et un extérieur de 39,55 m². Il est composé d'une entrée avec placard, un dégagement, une cuisine ouverte sur un séjour donnant sur la terrasse et le jardin, une chambre avec placard aménagé et une salle de bain avec toilette.
Points forts :
- Accession sécurisée en PSLA
- Place de stationnement
- Volets roulants électriques
- Chauffage individuel gaz
Avantages :
- Exonération de Taxe Foncière pendant 15 ans
- TVA à 5.5 %
- Aucun frais d’agence
- Garantie de rachat et de relogement
Architecture contemporaine avec isolation de qualité RE2020.
Prix : 129 000 €*
*Prime de 9 000 € de SAINT-ETIENNE METROPOLE déduite.
Renseignements au 04 26 84 08 19
Les informations sur les risques auxquels ce bien est exposé sont disponibles sur le site Géorisques https://www.georisques.gouv.fr
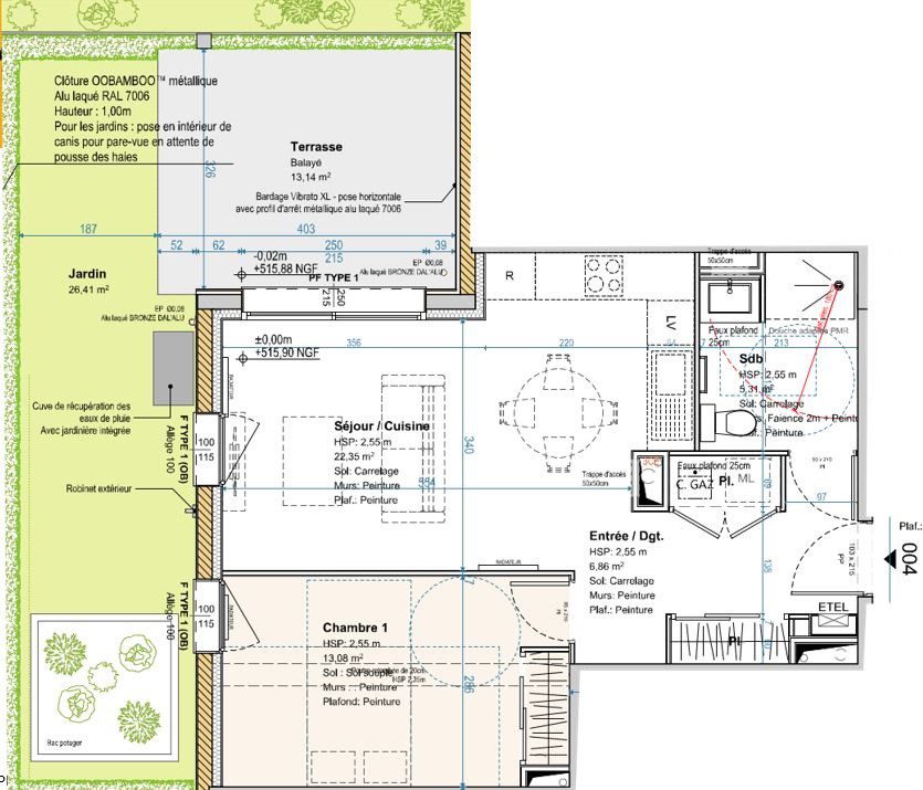
Appartement 4 pièces 86m² avec terrasse / jardin et place de stationnement
Venez découvrir « Desjoyaux », un nouveau programme à Saint-Etienne comprenant un immeuble collectif de 12 appartements et 4 pavillons, proposés en accession sécurisée.
Offrez-vous une maison située impasse Desjoyaux, dans un quartier offrant une vue dégagée sur la ville et à proximités des transports, du centre-ville et des commerces.
Cet appartement de quatre pièces, offre une surface habitable de 86,02 m² et un extérieur de 102,24 m². Il est composé d'une entrée avec placard, un cellier, une cuisine ouverte sur un séjour donnant sur la terrasse et le jardin, deux chambres, un chambre avec placard aménagé, une salle de bain et toilette séparée.
Points forts :
- Accession sécurisée en PSLA
- Place de stationnement
- Volets roulants électriques
- Chauffage individuel gaz
Avantages :
- Exonération de Taxe Foncière pendant 15 ans
- TVA à 5.5 %
- Aucun frais d’agence
- Garantie de rachat et de relogement
Architecture contemporaine avec isolation de qualité RE2020.
Prix : 215 000 €*
*Prime de 9 000 € de SAINT-ETIENNE METROPOLE déduite.
Renseignements au 04 26 84 08 19
Les informations sur les risques auxquels ce bien est exposé sont disponibles sur le site Géorisques https://www.georisques.gouv.fr
HM Comberigol maison 4 pièces jardin et garage La Grand Croix
Découvrez « Combérigol », un programme immobilier neuf à La Grand-Croix, proposant 4 maisons modernes avec jardins et garages, disponibles en accession sécurisée.
Offrez-vous une maison sur les hauteurs de la commune de La Grand-Croix, avec une vue dégagée.
Cette maison de quatre pièces, offre une surface de 94.79 m² sur un terrain d'environ 150m² et se compose :
- Au rez-de-chaussée : une cuisine ouverte sur le séjour donnant sur le jardin, une salle d'eau avec toilette et un cellier.
- A l'étage : un dégagement, trois chambres avec placards aménagés, une salle de bain et wc séparé.
Les atouts :
– Accession sécurisée grâce au dispositif PSLA (Prêt Social Location-Accession)
– Garage et jardin
– Volets roulants électriques pour plus de confort et de sécurité
– Chauffage performant par pompe à chaleur
Les avantages de votre future acquisition :
– Exonération de taxe foncière pendant 15 ans
– TVA réduite à 5,5 %
– Aucun frais d'agence
– Garantie de rachat et de relogement
Architecture contemporaine avec isolation de qualité RE2020.
Renseignements au 04 26 84 08 19
Documentation et vidéos disponibles sur demande
Les informations sur les risques auxquels ce bien est exposé sont disponibles sur le site Géorisques https://www.georisques.gouv.fr
Pavillon mitoyen T4 duplex 85m² avec jardin à Chevrières
Pavillon mitoyen 4 pièces avec garage, située Clos Saint-Joseph à Chevrières (42).
Cette maison de 85m² offre au rez-de-chaussée : une entrée avec placard, une cuisine séparée, un séjour donnant sur le jardin et à l'étage, un dégagement, trois chambres, une salle de bains et WC indépendant.
Chauffage électrique individuel avec ballon eau chaude.
Rafraichissement à prévoir.
Ce bien fait partie d’une ASL (Association Syndicale Libre).
Il s’agit d’un groupement de propriétaires qui prévoit un petit budget chaque année et prend les décisions nécessaires à la gestion des éventuelles parties communes (voirie, espaces verts, entretien, ordures ménagères, etc.).
Un petit budget est donc à prévoir dans le cadre de l’ASL.
Taxe foncière 2025 : 545€
Renseignements au O6 48 98 33 85
¤ Frais de notaire réduits
¤ Sans frais d’agence
Le logement peut être visité du lundi au vendredi sur rendez-vous. L’offre devra être remise à Synergie Habitat, via le dossier remis lors de la visite.
Priorité aux locataires des offices HLM du département jusqu’au 14 mars 2026.
Cette vente répond aux articles L443-7 et L443-11 du Code de la Construction et de l’Habitat.
Les informations sur les risques auxquels ce bien est exposé sont disponibles sur le site Géorisques https://www.georisques.gouv.fr
*Vente sous réserve d'obtention des autorisations administratives.
Maison moderne 4 pièces avec garage et jardin
A Saint-Etienne, petit ensemble immobilier avec seulement 6 maisons ! Offrez vous un pavillon 4 pièces avec jardin et garage – Allée des Tennis à Saint-Etienne – Programme "Le Passing"
Découvrez nos pavillons en construction disponibles via le dispositif d'accession sécurisé PSLA, une solution idéale pour acquérir votre bien tout en profitant d’avantages financiers. Situés dans un cadre verdoyant, ces pavillons sont à proximité des commodités (commerces, écoles, transports).
Caractéristiques :
* Une maison moderne avec toit plat
* Une cuisine ouverte sur séjour donnant sur un agréable jardin de 268m²
* Trois chambres avec placards
* Des toilettes et salle d'eau à chaque niveau
Points forts :
* Accession sécurisée en PSLA
* Volets roulants électriques
* Chauffage par pompe à chaleur avec plancher chauffant
Avantages :
* Exonération de Taxe Foncière pendant 15 ans
* TVA à 5.5 %
* Aucun frais d'agence
* Garantie de rachat et de relogement
* Excellentes performances thermiques grâce à la RE 2020
Prix : 266 000 €*
*Prime de 9 000 € de SAINT-ETIENNE METROPOLE déduite.
Ne manquez pas cette opportunité ! Contactez-nous au O4 26 84 08 19 pour plus d'informations
Plans et plaquette de présentation sur demande.
Réf.: HM-PSLA-Tennis
Puits Lucy Maison 4 pièces avec garage et jardin/terrasse lot1
Découvrez « Puits Lucy », un nouveau programme situé dans le quartier Le Fay à Saint-Jean-Bonnefonds, composé de 5 maisons avec jardin et garage, proposées en accession sécurisée.
Offrez-vous une maison dans un quartier résidentiel paisible et verdoyant, offrant un cadre de vie agréable avec une vue dégagée sur la vallée du Furan et la commune voisine de La Talaudière.
Cette maison de quatre pièces, offre une surface de 95.15 m² et se compose :
- Au rez-de-chaussée : un hall d’entrée avec placard, une cuisine ouverte sur le séjour donnant sur la terrasse et le jardin et d'une salle de bain avec toilette.
- A l'étage : un dégagement, trois chambres avec placards aménagés et une salle de bain avec toilette.
Les atouts :
- Accession sécurisée grâce au dispositif PSLA (Prêt Social Location-Accession)
- Garage et jardin
- Volets roulants électriques pour plus de confort et de sécurité
- Chauffage performant par pompe à chaleur avec plancher chauffant
- Logement livré avec murs et plafonds peints
Les avantages de votre future acquisition :
- Exonération de taxe foncière pendant 15 ans
- TVA réduite à 5,5 %
- Aucun frais d’agence
- Garantie de rachat et de relogement
Architecture contemporaine avec isolation de qualité RE2020.
Renseignements au 04 26 84 08 19
Les informations sur les risques auxquels ce bien est exposé sont disponibles sur le site Géorisques https://www.georisques.gouv.fr
Maison 4 pièces avec garage et jardin Saint-Chamond La Maladière
A Saint-Chamond, petit ensemble immobilier avec seulement 4 maisons ! Offrez vous le dernier pavillon 4 pièces avec jardin et garage disponible – Chemin de la Maladière à Saint-Chamond – Programme "La Maladière"
Découvrez nos pavillons en construction disponibles via le dispositif d'accession sécurisé PSLA , une solution idéale pour acquérir votre bien tout en profitant d’avantages financiers. Situés dans un cadre verdoyant, ces pavillons sont à proximité des commodités (commerces, écoles, transports).
Maison moderne qui dispose d'un séjour avec espace cuisine de 36 m² donnant sur une agréable terrasse avec un jardin engazonné. Un espace cellier, buanderie donnant sur le garage de 15 m². A l'étage, vous trouverez trois chambres avec placards, salle de bain et toilette séparé.
Points forts :
- Accession sécurisée en PSLA
- Volets roulants électriques
- Chauffage par pompe à chaleur, plancher chauffant
Avantages :
- Exonération de Taxe Foncière pendant 15 ans
- TVA à 5.5 %
- Aucun frais d'agence
- Garantie de rachat et de relogement
- Excellentes performances thermiques grâce à la RE 2020
Prix : 260 500 €*
*Prime de 9 000 € de SAINT-ETIENNE METROPOLE déduite.
Ne manquez pas cette opportunité ! Contactez-nous au O4 26 84 O8 19 pour plus d'informations
Réf.: HM-PSLA-Maladière



































































